
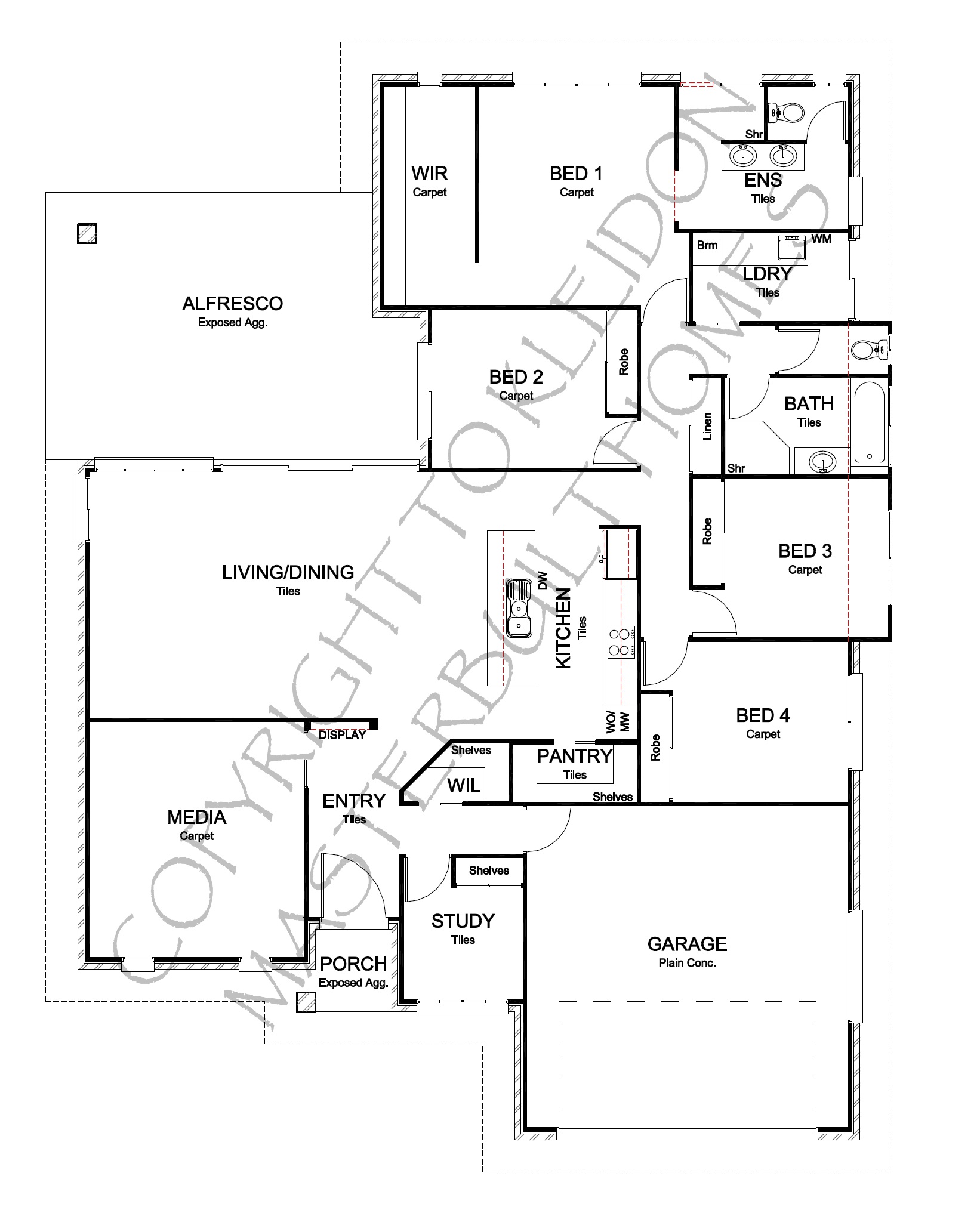
Laguna 262
- 4
- Bedrooms
- 2
- Bathrooms
- 2
- Living rooms
- 2
- Garages
Features
- Open plan living/dining area
- Media Room
- Study
- Walk-in-Linen
- Walk-in-Pantry
- Walk-in-Robe
- Spacious alfresco area
House Size
262.21m2- House Length
- 21.10m
- House Width
- 15.80m
- Min. Block Width
- 18.2m
Plan highlights
An exquisite family home with all of the features of a fantastic functional home, with major street appeal.
With a spacious living area combined with the dining area and designer kitchen, there’s plenty of room for spending time together as a family, or retreat to the four large bedrooms for some peace and quiet.
The master suite features a unique ensuite and deluxe walk-in-robe.
Indoor entertainment is covered with a media room and study.
Entertain guests on the spacious alfresco area.